Hello again
I just bought a throttle from a BMW E46, It's a Bosch 0 205 001 040.
Does anybody have the pinout for this? Or anybody who can tell me how to find out what color is what on the cables?
Thanks
IMG_1567.jpegIMG_1568.jpegIMG_1569.jpegIMG_1570.jpeg
BMW Throttle from E46 320d pinout
- crasbe
- Posts: 330
- Joined: Mon Jul 08, 2019 5:18 pm
- Location: Germany
- Has thanked: 58 times
- Been thanked: 180 times
Re: BMW Throttle from E46 320d pinout
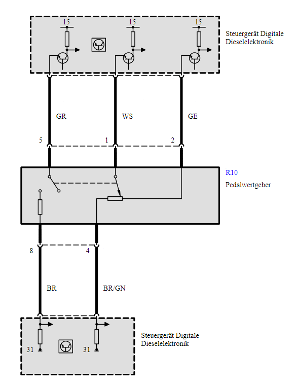
This is essentially a glorified potentiometer (hence the designator "R" for resistor). It has an angular range of 0-78° which corresponds to a voltage of 0-5V on Pin 1. Pin 2 is the +5V supply and Pin 4 is ground. The documentation does not state if 0° is 5V or 0° is 0V on Pin 1, you'll have to measure that.
On the left you can see an idle switch, which is open for less than 12% throttle and closed for more than 12% throttle. The switch connects the signal Pin 5 to ground on Pin 8. I don't think it would have much use for OpenInverter or ZombieVerter.
The cable colors are in German as well:
GR - Grau - Grey
WS - Weiß - White
GE - Gelb - Yellow
BR - Braun - Brown
BR/GN - Braun/Grün - Brown/Green
The pink cable seems to be unused in the BMW application.
On the left you can see an idle switch, which is open for less than 12% throttle and closed for more than 12% throttle. The switch connects the signal Pin 5 to ground on Pin 8. I don't think it would have much use for OpenInverter or ZombieVerter.
The cable colors are in German as well:
GR - Grau - Grey
WS - Weiß - White
GE - Gelb - Yellow
BR - Braun - Brown
BR/GN - Braun/Grün - Brown/Green
The pink cable seems to be unused in the BMW application.
- J0hannes
- Posts: 158
- Joined: Sat Nov 11, 2023 10:29 am
- Location: Finland
- Has thanked: 21 times
- Been thanked: 182 times
Re: BMW Throttle from E46 320d pinout
Similar to my Bosch pot from a Honda Jazz, that six-wire variant from BMW is probably a dual potetniometer one.
I would refrain from calling equivalency on items which are similar only by enclosure and don't even share the same number of wires exiting the housing. If you don't have the exact information available, would be better to just state that. What previous post tells us is that a five wire pot doesn't work, but that really doesn't answer the question of the OP does it?
My potentiometer I measured mine to check and it looks like there are two potentiometers... When input 5V
Signal 1 varies 2,47-3,74V
Signal 2 varies 0,56-1,92V
Colors and pin order on this Honda variant :
White, Vcc
Pink, sensor GND
Brown, Signal 1
Gray, Vcc
Yellow, sensor GND
Green, Signal 2
Footnote: can't really say regarding the BMW SIX wire pot, if the colors are used in the same purpose and order, so just measure your pot
Looking at the wire harness side connector, my guess would be is that one pot is Gray, Green, Yellow and another pot is the rest. You can also use ohmmeter and measure the resistance.
I would refrain from calling equivalency on items which are similar only by enclosure and don't even share the same number of wires exiting the housing. If you don't have the exact information available, would be better to just state that. What previous post tells us is that a five wire pot doesn't work, but that really doesn't answer the question of the OP does it?
My potentiometer I measured mine to check and it looks like there are two potentiometers... When input 5V
Signal 1 varies 2,47-3,74V
Signal 2 varies 0,56-1,92V
Colors and pin order on this Honda variant :
White, Vcc
Pink, sensor GND
Brown, Signal 1
Gray, Vcc
Yellow, sensor GND
Green, Signal 2
Footnote: can't really say regarding the BMW SIX wire pot, if the colors are used in the same purpose and order, so just measure your pot
Looking at the wire harness side connector, my guess would be is that one pot is Gray, Green, Yellow and another pot is the rest. You can also use ohmmeter and measure the resistance.
- J0hannes
- Posts: 158
- Joined: Sat Nov 11, 2023 10:29 am
- Location: Finland
- Has thanked: 21 times
- Been thanked: 182 times
Re: BMW Throttle from E46 320d pinout
There is a Wiki -page for this Bosch PWG-3 sensor
Information would be nice to be added there, if there are schematics etc
Information would be nice to be added there, if there are schematics etc